Accédez à nos meilleurs modèles de Plan de maison 5 chambres salon (Maison T6). Nous vous invitons à visiter ces modèles modernes de plan de distribution 2D et faire votre choix de plan de maison, puis, indiquer son numéro au formulaire ci-contre. Envoyez nous par la suite pour obtenir rapidement un devis promotionnel pour la conception des documents ci-après, dont les techniciens ont besoin pour construire votre futur maison : les plans de distribution 2D cotés aux dimensions désirées, les vues 3D, le plan de fondation, celui de toiture, les coupes et le devis des travaux de construction.
Par ailleurs, si vous désirez un nombre de chambres autre, alors cliquez sur le numéro de page correspondant. Si par contre vous voulez plutôt visiter nos Meilleurs modèles de maison 3D, alors, Cliquez ici.
Nos propositions de plan de distribution pour Maison plain-pied de 5 chambres salon (Maison T6)
Villa 5 chambres – Modèle type 1
Villa 5 chambres – Modèle type 2
Villa 5 chambres – Modèle type 3
Villa 5 chambres – Modèle type 4
Villa 5 chambres – Modèle type 5
Villa 5 chambres – Modèle type 6
Voir aussi: Nos modèles de plan de maison 3D type Villa
Villa 5 chambres – Modèle type 7
Villa 5 chambres – Modèle type 8
Villa 5 chambres – Modèle type 9
Villa 5 chambres – Modèle type 10
Villa 5 chambres – Modèle type 11
Villa 5 chambres – Modèle type 12
Villa 5 chambres – Modèle type 13
Villa 5 chambres – Modèle type 14
Villa 5 chambres – Modèle type 15
Voir aussi: Nos modèles de plan de maison 3D type Duplex
Villa 5 chambres – Modèle type 16
Villa 5 chambres – Modèle type 17
Villa 5 chambres – Modèle type 18
Villa 5 chambres – Modèle type 19
Villa 5 chambres – Modèle type 20
Villa 5 chambres – Modèle type 21
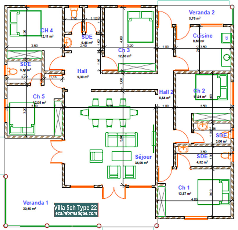
Villa 5 chambres – Modèle type 22
Ne quittez surtout pas sans indiquer votre choix au formulaire ci-contre pour obtenir rapidement un devis de conception des plans de votre future maison ! .
Pour changer le nombre de chambres, cliquez ci-dessous sur le numéro correspondant au nombre de chambres désiré. Exemple: cliquez sur 4 pour accéder aux plans de distributions de 4 chambres.














































